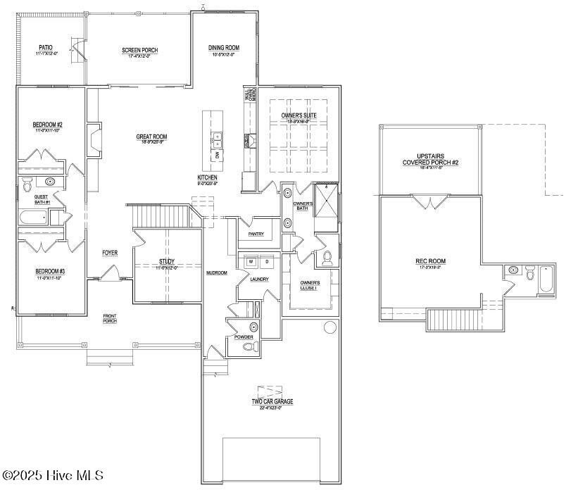
Welcome to The Wells at Creek Side in Brunswick Fores built by Legacy Homes by Bill Clarkt! This stunning move-in-ready new construction home offers 2,646 square feet of thoughtfully designed living space with 3 bedrooms, 3.5 bathrooms, a main-level study, and an upstairs recreation room. The heart of this home is the open-concept great room, dining room, and gourmet kitchen that flows seamlessly together, perfect for entertaining and everyday living. The prestige kitchen features a large island, premium appliances including a 30'' gas cooktop and wall oven, quartz countertops, and full overlay soft-close cabinets. The main level also includes a dedicated study, walk-in pantry, spacious mudroom, and convenient powder room. Hardwood flooring flows throughout the main living areas, primary bedroom, and study, while floor-to-ceiling shiplap accent walls brighten the main space and add coastal charm. The owner's suite is privately located on the first floor and features a luxurious bathroom with an oversized zero-entry shower, dual vanities with marble countertops, and a linen closet. The owner's walk-in closet includes custom white wood shelving for optimal organization. Two additional bedrooms are located on the opposite side of the first floor. Upstairs is a versatile recreation room perfect for a media room, game room, or additional living space. The recreation room is truly special with floor-to-ceiling shiplap accent walls, built-in cabinets with beverage fridge, and French doors opening to an airy covered porch. The thoughtful floor plan maximizes both privacy and togetherness with the perfect balance of gathering spaces and quiet retreats. This is coastal Carolina living at its finest!